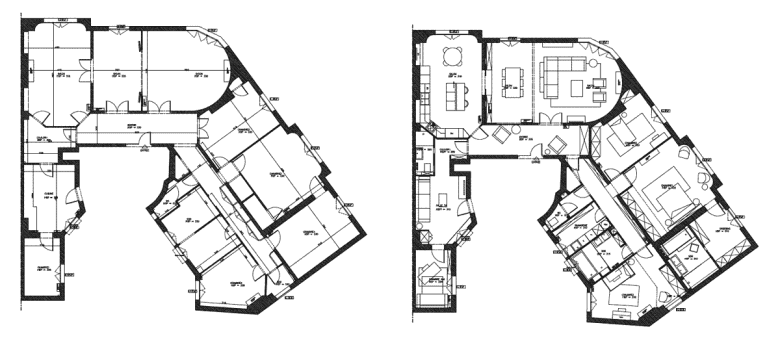
Appartement haussmannien 230m ²
Présentation de cet aménagement :
Ce grand appartement familial de 230m² de type haussmannien transformé en cabinet médical n'avait pas été rénové depuis plusieurs dizaines d'années. Le client a fait appel au collectif Créateurs d'intérieur avant l'achat pour avoir des conseils quant à l'aménagement et au potentiel du bien. L'architecte a proposé de conserver les atouts de l'haussmannien (parquets, moulures) et de gommer les défauts (Cloisonnement important, Séparation entre les espaces de vie et la cuisine).
L'objectif de cette rénovation était de transformer ce cabinet médical vétuste en un appartement familial de caractère et moderne.
- Créer un vaste espace de vie
- Créer des rangements importants sur la totalité de l'appartement
- Avoir un studio indépendant pour la famille de passage
Données techniques :
- Surface : 230m²
- Nombre de pièces : 7 pièces
- Style : Haussmannien moderne
- Objectifs : Avoir un vaste espace de vie, Créer des rangements, créer un espace indépendant pour la famille.
